DỰ ÁN ĐẤT - NHÀ VƯỜN VĨNH LỘC
Được đầu tư nhằm tái hiện một làng quê kiểu mẫu tại Thành phố Hồ Chí Minh, như một nhịp cầu chia sẽ nỗi nhớ quê hương và góp phần bảo tồn giá trị đạo lý truyền thống của gia đình đối với những ai đang hoài niệm tìm về miền quê xưa cũ.
Khu nhà vườn Vĩnh Lộc sẽ tạo ra một sản phẩm mới lạ và độc đáo, lồng ghép những giá trị văn hóa vật thể và phi vật thể vào từng không gian sống, góp phần tôn ta vẻ đẹp nhân văn của làng quê Việt Nam.
1. Mô hình tổ chức :
Khu nhà vườn Vĩnh Lộc là nơi đây tập hợp những ngôi nhà cổ 3 miền từ hàng trăm năm trước, cùng với những vật dụng cổ xưa vô cùng giá trị, mang trong mình những tinh hoa của lịch sử.
2. Vị trí :
• Tọa lạc tại xã Vĩnh Lộc B, ngay giao lộ Tỉnh lộ 10 và Võ Văn Vân, Huyện Bình Chánh.
• Cách chợ Bến Thành 15 km về hướng Tây
• Nằm liền kề khu dân cư Vĩnh Lộc B quy mô hơn 40ha
• Tiếp giáp với Quận 6, Bình Tân thuận tiện giao thông tới các quận 5, 7, 8, 11, 12 Tân Phú, Tân Bình, đi các tỉnh miền Tây ….


SƠ ĐỒ VỊ TRÍ VINH LOC GARDEN
- Nằm trong tổng thể KDC Vĩnh Lộc B hơn 40ha đã hoàn thiện hạ tầng với đầy đủ các công trình tiện ích công cộng gồm : trường Mầm non, trường cấp I, II, III và tổ hợp 36 block chung cư đã đi vào hoạt động.
• Khu nhà vườn Vĩnh Lộc có quy mô gần 18ha, chia làm 3 giao đoạn triển khai với gần 200 sản phẩm nhà vườn mang đậm nét cổ xưa.

HÌNH HỌA ĐỒ VỊ TRÍ
CÁC GIAI ĐOẠN TRIỂN KHAI
• Giai đoạn 1 sẽ triển khai khu nhà vườn gần 2ha.
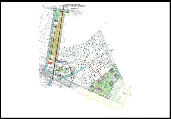
SƠ ĐỒ PHÂN LÔ
.jpg)
MẶT BẰNG TỔNG THỂ
• Pháp lý hoàn chỉnh, sổ đỏ từng lô.
• Nằm trong khu quy hoạch động bộ
• Cơ sở hạ tầng hiện hữu hoàn chỉnh : đường nhựa, hệ thống thoát nước, hệ thống điện và cấp nước đến từng hộ.
• Tiện ích tại dự án : nhà hàng, café, bảo vệ, quản gia, người làm vườn, khu dân trí cao….
• Trường mẫu giáo, cấp 1, cấp 2, cấp 3 chỉ cách dự án 300m.
• Siêu thị Co.opmart, trung tâm thể dục ngay tại khu dự án.
COOP.MART KHỞI CÔNG XÂY DỰNG T04/2013
• Nằm ngay đường 60m tỉnh Lộ 10, giao thông chính về trung tâm Thành Phố Hồ Chí Minh, Sân bay Tân Sơn Nhất, Các tỉnh Miền Tây….
• Luôn gia tăng giá trị : Giá trị vật chất, giá trị tinh thần và giá trị văn hóa.
Hình ảnh thực tế:






